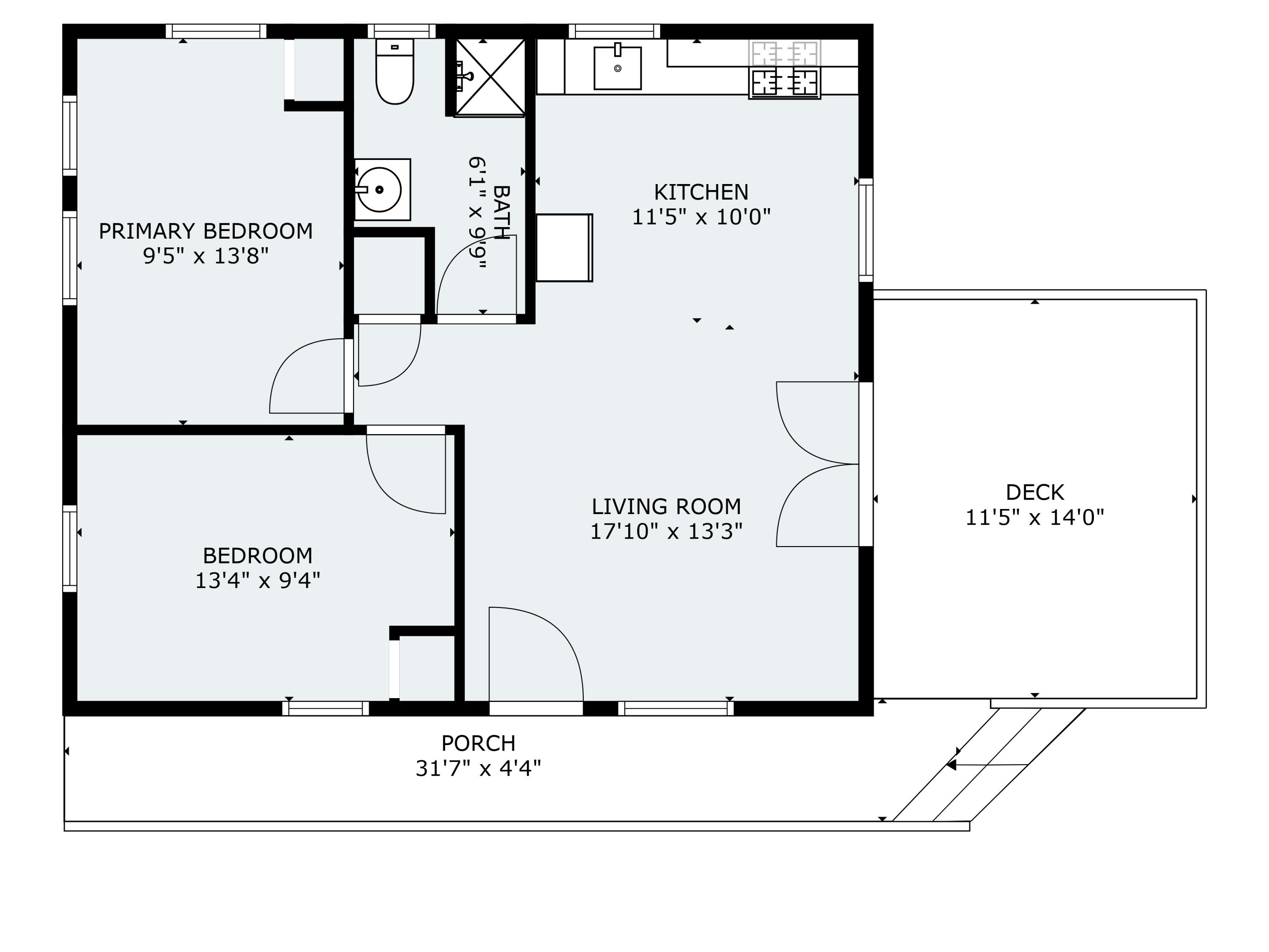
MOTIVATED SELLERS!!!! Charming Lakeside Retreat with Endless Potential! This property is ideal for those seeking to renovate and customize a space to fit their specific needs. Bring your ideas to rejuvenate this home with fresh updates. Nestled on nearly 4 acres of serene landscape, and 358 ft of waterfront on Salmon Lake, this retreat offers two houses with endless possibilities. Main house has three bedrooms, two full baths, detached two car garage with extensive storage. Cottage is year round and offers an open kitchen, dining, and living room area, two bedrooms, and one full bathroom. Step outside and discover a private lakefront oasis that truly sets this property apart. The picturesque water views and a small pond invite quiet afternoons and memorable gatherings. Whether you envision a place where you can live and let part of the space serve as a rental income opportunity or you're searching for a venue for celebrations and special events, 117 Taylor Woods Road adapts effortlessly to your lifestyle needs.

Listing Tools

Property Details of 117 Taylor Woods Road

Property Details

Interior Features

Exterior Features

Utilities and Appliances

Map Location

Listing data is derived in whole or in part from the Maine IDX & is for consumers' personal, non commercial use only. Dimensions are approximate and not guaranteed. All data should be independently verified. ©2026 Maine Real Estate Information System, Inc. All Rights Reserved. equal opportunity housing logo   Privacy Policy

Cates Real Estate participates in ©2026 Maine Listings Internet Data Exchange program, allowing us to display other Maine IDX Participants' listings. This website does not display complete listings. Certain listings of other real estate brokerage firms have been excluded. Mortgage figures are estimates. Check with your bank or proposed mortgage company for actual interest rates. This product uses the FRED® API but is not endorsed or certified by the Federal Reserve Bank of St. Louis.

Hi there! How can we help you?

Contact us using the form below or give us a call.

Send Us A Message:

I agree to receive marketing and customer service calls and text messages from Cates Real Estate. To opt out, you can reply 'stop' at any time or click the unsubscribe link in the emails. Consent is not a condition of purchase. Msg/data rates may apply. Msg frequency varies. Privacy Policy.

Do not fill in this field:

This site is protected by reCAPTCHA and the Google Privacy Policy and Terms of Service apply.

Hi there! How can we help you?

Contact us using the form below or give us a call.

Send Us A Message:

Do not fill in this field:

This site is protected by reCAPTCHA and the Google Privacy Policy and Terms of Service apply.

Hi there! How can we help you?

Contact us using the form below or give us a call.

Send Us A Message:

Do not fill in this field:

This site is protected by reCAPTCHA and the Google Privacy Policy and Terms of Service apply.

Do not fill in this field:

This site is protected by reCAPTCHA and the Google Privacy Policy and Terms of Service apply.

Do not fill in this field:

This site is protected by reCAPTCHA and the Google Privacy Policy and Terms of Service apply.

Do not fill in this field:

This site is protected by reCAPTCHA and the Google Privacy Policy and Terms of Service apply.

$

Do not fill in this field:

This site is protected by reCAPTCHA and the Google Privacy Policy and Terms of Service apply.